SS сепаратор крахмала
Использование сепараторов типа SS:
- кухни общепита,
- фабрики по производству картофеля фри,
- макаронные фабрики,
- заводы по переработке овощей,
- заводы по производству крахмала,
- пекарни,
- бары быстрого обслуживания.
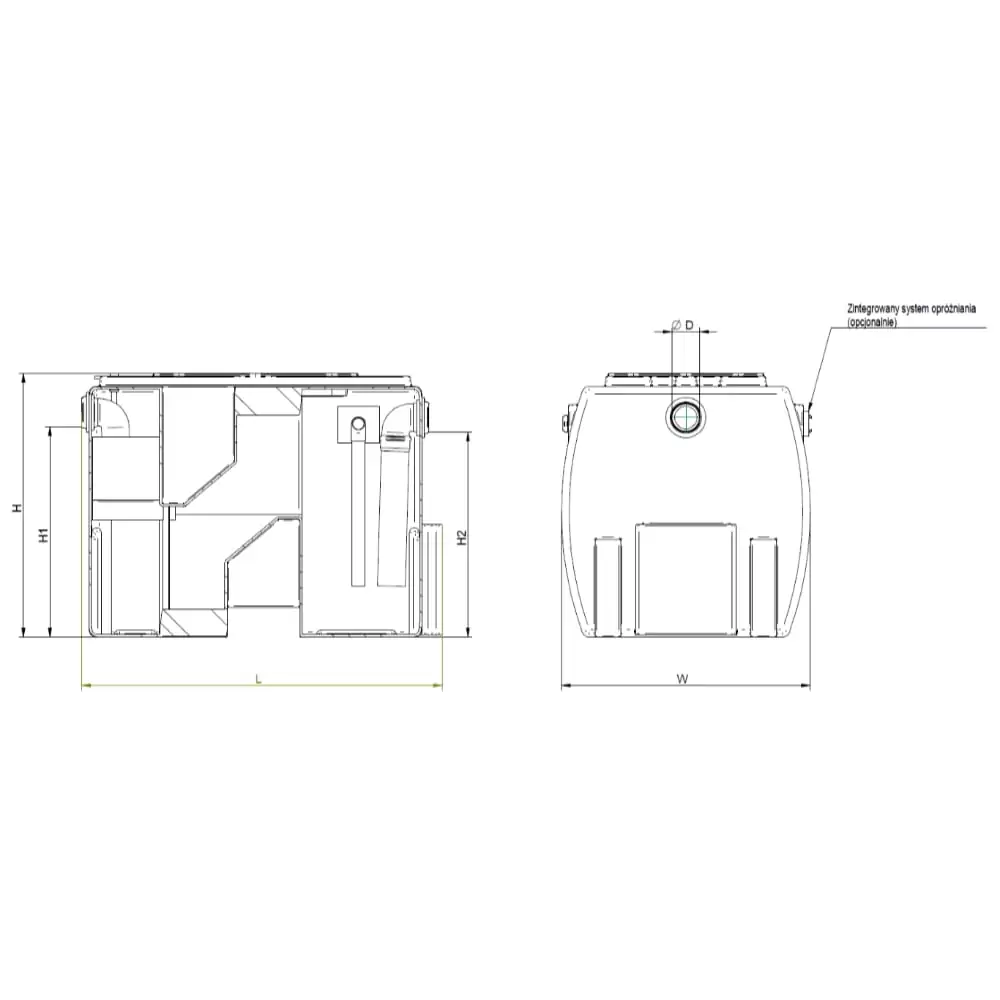
Таблица размеров сепараторов крахмала типа СС
| МОДЕЛЬ | НОМИНАЛЬНЫЙ РАСХОД [л/с] | ЕМКОСТЬ СЕПАРАТОРА [л] | ДЛИНА – L [мм] | ШИРИНА – W [мм] | ВЫСОТА – H [мм] | ДИАМЕТР ПОДКЛЮЧЕНИЯ – DN [мм] | ВЫСОТА ВХОДА – H1 [мм] | ВЫСОТА ВЫХОДА – H2 [мм] |
| SS 3 | 1 to 3 | 300 | 1405 | 990 | 1050 | 110 | 895 | 875 |
| SS 6 | 4 to 6 | 600 | 1405 | 990 | 1050 | 160 | 890 | 870 |
| SS 8 | 8 | 800 | 2080 | 990 | 1040 | 160 | 890 | 870 |
| SS 10 | 10 | 1000 | 2080 | 990 | 1040 | 200 | 870 | 850 |


