Сепаратор углеводородов SWOK

Применение гидроочистителей типа SWOK:

  • На заправочных станциях (бензоколонках) для обработки сточных вод, содержащих нефтепродукты.
  • На авторазборках для очистки сточных вод от нефтепродуктов.
  • В гаражах, включая подземные парковки, для обработки сточных вод от автомобилей.
  • На малых парковках, включая подземные парковки, для очистки сточных вод.
  • На пунктах обслуживания пассажиров (MOP) для обработки сточных вод, содержащих нефтепродукты.
  • В механических мастерских для очистки сточных вод от нефтепродуктов.
  • В автосервисах и автосервисных мастерских для обработки сточных вод.
  • На промышленных предприятиях для очистки сточных вод, содержащих нефтепродукты.
  • В центрах хранения и распределения топлива для обработки сточных вод.
  • На базах оборудования для обработки сточных вод.
  • В логистических центрах для очистки сточных вод.
Артикул: SWOK Категория:
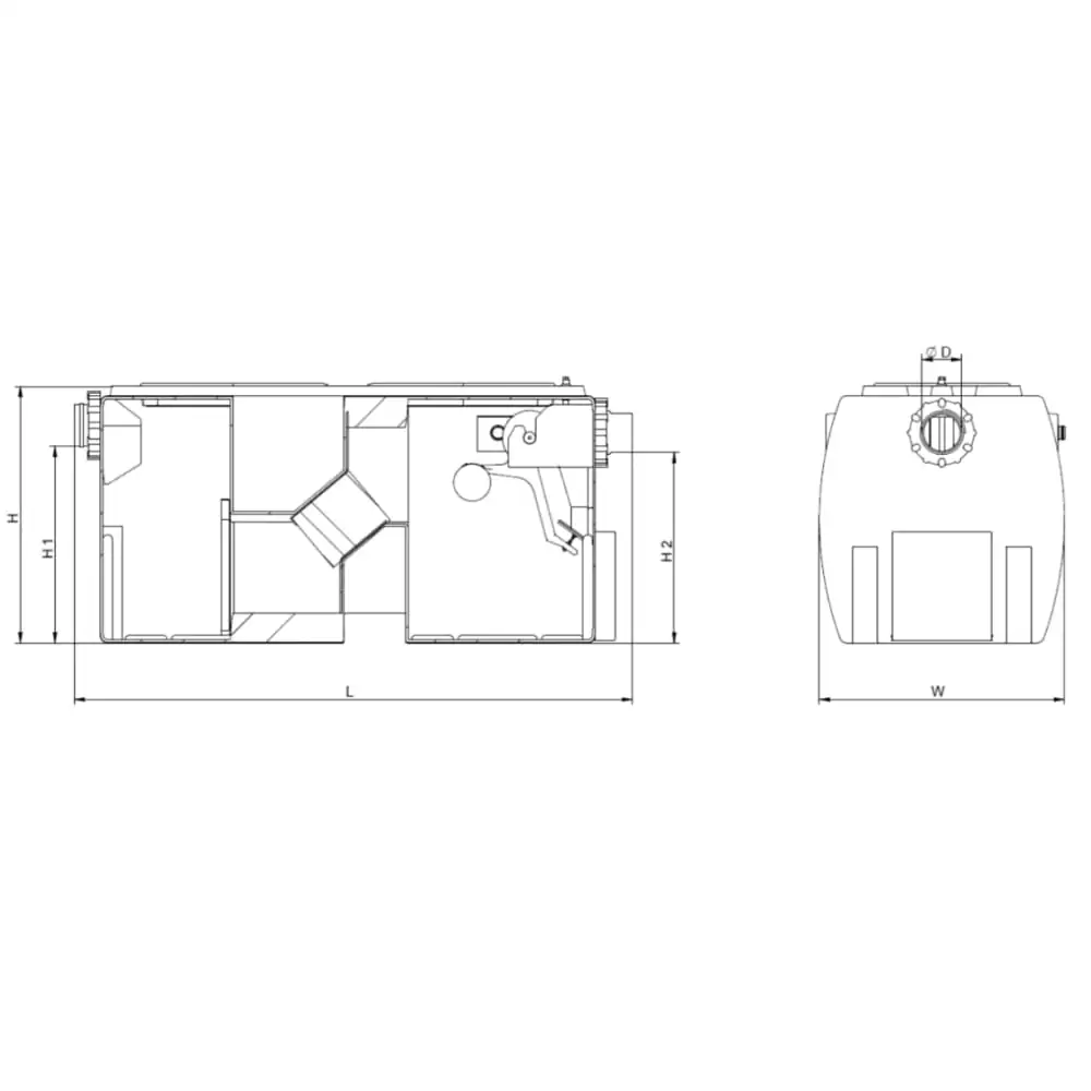
Таблица размеров сепаратора углеводородов типа SWOK
МОДЕЛЬ НОМИНАЛЬНЫЙ РАСХОД [л/с] ПРОИЗВОДИТЕЛЬНОСТЬ ОТИЛИВАТЕЛЯ [л] ПРОИЗВОДИТЕЛЬНОСТЬ СЕПАРАТОРА [л] ДЛИНА – L [мм] ШИРИНА – W [мм] ВЫСОТА – H [мм] ДИАМЕТР ПОДКЛЮЧЕНИЯ – DN [мм] ВЫСОТА ВХОДА – H1 [мм] ВЫСОТА ВЫХОДА – H2 [мм]
SWOK 3 od 1,5 to 3 270 300 1720 990 1040 110 880 850
SWOK 6 6 540 600 2240 990 1040 160 880 850
SWOK 8 8 720 800 1720 990 1040 160 880 840
SWOK 10 10 900 1000 4230 990 1040 160 880 820
SWOK 15 15 1350 1500 4900 990 1040 200 880 820
SWOK 20 20 1800 2000 6240 990 1040 200 880 820
SWOK 30 od 25 to 30 2700 3000 3090 1810 2070 300 1700 1650
SWOK 40 od 35 to 40 3600 4000 4270 1810 2070 300 1700 1650
SWOK 60 od 45 to 60 5400 6000 6020 1810 2070 300 1700 1650
SWOK 70 od 65 to 70 6300 7000 6600 1810 2070 300 1700 1650
SWOK 80 od 75 to 80 7200 8000 7780 1810 2070 300 1700 1650
SWOK 90 od 85 to 90 8100 9000 8355 1810 2070 300 1700 1650
SWOK 100 od 95 to 100 9000 10000 9540 1810 2070 300 1700 1650

Описание

Гидроочистители углеводородов предназначены для очистки дождевой воды, талой воды и сточных вод от участков, подверженных загрязнению нефтепродуктами. Они представляют собой устройства для механического отделения свободных нефтей и других эмульсий от остальной канализации в процессе ее протекания через установку.  Процесс очистки основан на разнице в плотности углеводородов и воды. В связи с особенностью работы гидроочистителей они также задерживают часть оседающей суспензии, которая накапливается в отстойной камере на дне устройства.

Основой правильной работы очистителя является правильное определение номинального расхода (количество дождевой воды, проходящей через устройство [л/с]). Это определяет основные характеристики очистителя: размер зоны разделения, вместимость для сбора легких жидкостей, рабочий уровень жидкости и объем осадительного бака. Правильный выбор этих параметров обеспечивает эффективное осаждение нефтяных веществ из дождевой воды, позволяя крупным каплям всплывать на поверхность. В классе I очистителей этот процесс ускоряется и поддерживается коксовыми картриджами.